







1. 理想的物流供電系統;
2.對環境的要求比較低;
3.運行平穩且不產生火花;
4.在室內、室外、多塵、多灰及溫差較大的場合均能正常工作;
5.兩端裝有緩沖裝置,對電纜起保護作用
6.廣泛應用于各種通用橋式起重機、門式起重機、電動葫蘆自行小車、倉庫、船廠、碼頭等起重設備的移動供電。
在線咨詢
0510-85102772撥打熱線了解更多
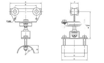
電纜滑車是一種理想的物流供電系統,根據其軌道的不同可分為C型軌電纜滑車和I(H)型軌電纜滑車兩種。該系統對環境的要求比較低,運行平穩且不產生火花,在室內、室外、多塵、多灰及溫差較大的場合均能正常工作。扁電纜和圓電纜均能安裝使用,并在滑車的兩端裝有緩沖裝置,對電纜起保護作用。工具滑車上配有球鉸吊環,能自行校正懸掛物重心。目前電纜滑車已被廣泛應用于各種通用橋式起重機、門式起重機、電動葫蘆自行小車、倉庫、船廠、碼頭等起重設備的移動供電。
| 型號 | C型電纜滑車 | I(H)型電纜滑車 |
| 運行速度 | ≤160m/min | ≤300 m/min |
| 環境 | -40℃~+125℃ | |
軌道根據承載重量的大小選型

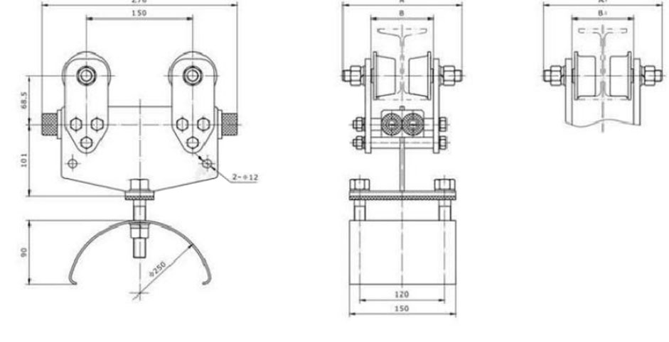
型 號 | C-32 | C-40 | C-63 |
編 號 | 0800010 | 0800020 | 0800030 |
材 料 | 鋼防銹處理 | ||
標準長度 | 6m | ||
| 軌道技術參數 | ||
A | 32 | 40 | 63 |
B | 30 | 34 | 63 |
C | 12 | 14 | 18 |
| 1.2 | 2 | 4 |

型 號 | CXJ-32I | CX]-40I | CXJ-63I |
編 號 | 0805010 | 0805020 | 0805030 |
材 料 | 鋼鍍鋅處理 | ||
技術參數 | |||
A | 37 | 46 | 70 |
B | 42 | 50 | 65 |
C | 65 | 75 | 100 |
| 60 | 65 | 75 |
M | M8 | M12 | M12 |

型 號 | CX]-40Ⅱ | CX]-63II |
編 號 | 0805021 | 0805031 |
材料 | 鋼鍍鋅處理 | |
技術參數 | ||
A | 47 | 71 |
B | 36 | 50 |
L | 90 | 110 |
M | M8 | M12 |
D | 34 | 65 |
* 注:本件可作為固定懸吊夾使用。

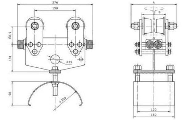
型號 | CLQ-32 | CLQ-40 | CLQ-63 |
編 號 | 0806010 | 0806020 | 0806030 |
材 料 | 鋼鍍鋅處理 | ||
技術參數 | |||
A | 39 | 50 | 73 |
B | 37 | 44 | 73 |
M | M6 | M8 | M8 |
L1 | 1.00 | 120 | 160 |
L2 |
|
| 36 |
L3 | 50 | 60 | 50 |
L4 |
|
| 36 |

型 號 | CDM-32 | CDM-40 | CDM-63 |
編 號 | 0807010 | 0807020 | 0807030 |
材 料 | 工程塑料 | ||
技術參數 | |||
A | 32 | 41 | 63 |
B | 30 | 34 | 63 |
D | 35 | 40 | 55 |

型號 | C-32 | C-40 | C-63 |
Lmin mm | 120 | 150 | 180 |
A mm | 70 | 90 | 110 |
M mm | M8 | M8 | M12 |

材料 | 鋼鍍鋅處理 |
運行速度 | ≤160m/min |
環境溫度 | -40℃~+125℃ |

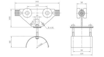
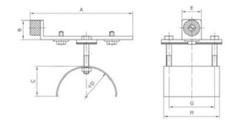
型號 | 編號 | 電 纜 | A | B | C | D | E | F | G | H | 承載量 |
mm | |||||||||||
CHM-32 | 0802010 | 30×50 | 85 | 55 | 30 | 60 | 40 | 25 | 60 | 80 | 25 |
CHM-40 | 0802020 | 35×60 | 110 | 70 | 35 | 70 | 40 | 27 | 70 | 90 | 70 |

型號 | 編號 | 電 纜 | A | B | C | D | E | F | G | H | 承載量 |
mm | |||||||||||
CHMZ-32 | 0802015 | 30×50 | 85 | 55 | 30 | 60 | 100 | 25 | 60 | 80 | 25 |
CHMZ-40 | 0802025 | 35×60 | 110 | 70 | 35 | 70 | 120 | 27 | 70 | 90 | 70 |
* 滑車特點:懸掛部分與車身之間可以自由旋轉

型號 | 編號 | 電 纜 | 承載量 |
CHM-63 | 0802030 | 45×75 | 120 |

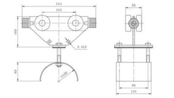
型號 | 編號 | 電 纜 | A | B | C | D | E | F | G | H | 承載量 |
mm | |||||||||||
CHQ-32 | 0801010 | 30×50 | 85 | 55 | 30 | 60 | 80 | 25 | 60 | 80 | 25 |
CHQ-40 | 0801020 | 35×60 | 110 | 70 | 35 | 70 | 100 | 27 | 70 | 90 | 70 |

型號 | 編號 | 電 纜 | 承載量 |
CHM-63 | 0801030 | 45×75 | 120 |

型號 | 編號 | 電 纜 | A | B | C | D | E | G | H | 承載量 |
mm | ||||||||||
CHW-32 | 0803010 | 30×50 | 120 | 22 | 30 | 60 | 22 | 60 | 80 | 25 |
CHW-40 | 0803020 | 35×60 | 120 | 26 | 35 | 70 | 26 | 70 | 90 | 70 |
CHW-63 | 0803030 | 45×75 | 215 | 50 | 60 | 120 | 45 | 90 | 120 | 120 |

型號 | 編號 | L | H | D | d | 承載量 |
mm | ||||||
CHT-32 | 0804010 | 90 | 130 | 35 | 25 | 25 |
CHT-40 | 0804020 | 100 | 150 | 35 | 25 | 70 |
CHT-63 | 0804030 | 120 | 180 | 50 | 35 | 120 |
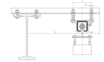
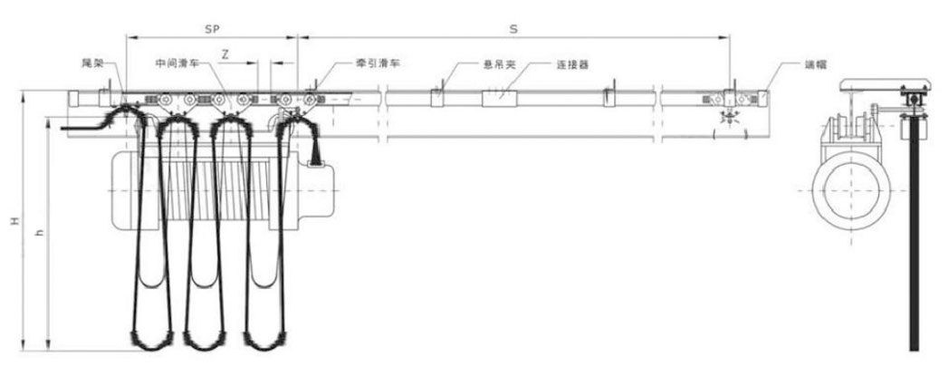
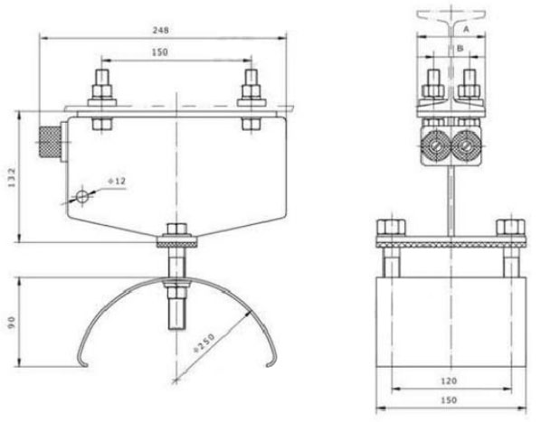
①C型軌道
②連 接 器
③懸 吊 夾
④中間固定夾
⑤端 帽
⑥尾 架
⑦中間滑車
⑧牽引滑車
⑨電纜
⑩鋼絲

電纜長度系數的確定
受電設備運行速度 | 電纜懸垂長度h | 電纜長度系數 |
≤35 m/min | > 0.3 m | f= 1.1 |
≤ 50 m/min | C0.8 m | f= 1.15 |
≤50 m/min | > 0.8 m | f = 1.1 |
≤ 80 m/min | ≤0.8 m | f = 1.2 |
≤80 m/min | > 0.8 m | f = 1.15 |
當懸掛圓電纜時 | f= 1.2 | |

積放空間
SP=nxI+z
電纜長度(尾架到牽引滑車之間的長度)
L=(S+SP)xf
S:行程
SP:積放空間
Z:空余距離,推薦取一個滑車長度
n:電纜滑車數量(只包括中間滑車和牽引滑車)
I:滑車長度
f:電纜長度系數
L:電纜長度(尾架到牽引滑車之間的長度)

積放空間
SP=nxI+z
電纜長度(尾架到牽引滑車之間的長度)
L=(S+SP)xf
S:行程
SP:積放空間
Z:空余距離,推薦取一個滑車長度
n:電纜滑車數量(只包括中間滑車和牽引滑車)
I:滑車長度
f:電纜長度系數
L:電纜長度(尾架到牽引滑車之間的長度)



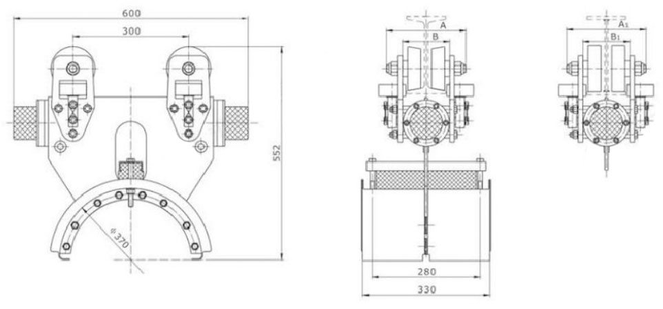
類別 | 適用在I型鋼INP100~140和H型鋼IPE100~150軌道上 |
載重量 | 100kg |
材質 | 鋼熱鍍鋅處理 |
環境溫度 | -40℃~+125℃ |
運行速度 | ≤120 m/min |
NP | 100 | 120 | 126 | 140 |
尺寸A mm | 132 | 140 | 140 | 145 |
民士B mm | 82 | 90 | 90 | 95 |
IPE | 100/50 | 102/75 | 125/75 | 150/100 |
尺寸A1mm | 106 | 135 | 145 | 170 |
尺寸B1mm | 66 | 92 | 95 | 118 |
型 號 | 編 號 | 單根電纜允許最大厚度或直徑mm | 是士安輩容間高度X塞度mm | |
牽引滑車 | IHQ10/140 | 0901010 | 14 | 45×100 |
中間滑車 | IHM10/140 | 0902010 | 14 | 45×100 |
尾架 | IHW10/140 | 0903010 | 14 | 45×100 |
型 號 | 編 號 | 單根電纜允許最大厚度或直徑mm | 最大安裝空間高度×寬度mm | |
牽引滑車 | HHQ10/140 | 0901015 | 14 | 45×100 |
中間滑車 | HHM10/140 | 0902015 | 14 | 45×100 |
尾架 | HHW10/140 | 0903015 | 14 | 45×100 |




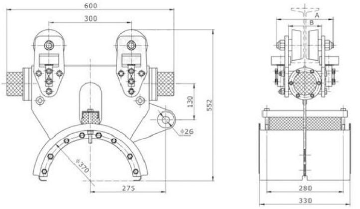
類別 | 適用在I型鋼INP120~160和H型鋼IPE102~150軌道上 |
載重量 | 300kg |
材質 | 鋼熱鍍鋅處理 |
環境溫度 | -40℃~+125℃ |
運行速度 | ≤160 m/min |
INP | 120 | 126 | 140 | 160 |
尺寸A mm | 175 | 175 | 184 | 195 |
民士B mm | 95 | 95 | 102 | 110 |
IPF | 102/100 | 125/125 | 150/100 | 150/152 |
尺寸A1mm | 208 | 234 | 210 | 265 |
尺寸B1mm | 122 | 148 | 122 | 175 |
型 號 | 編 號 | 單根電纜允許最大厚度或直徑mm | 最大安裝空間高度×寬度mm | |
牽引滑車 | HHQ30/250 | 0901035 | 25 | 70×100 |
中間滑車 | HHM30/250 | 0902035 | 25 | 70×100 |
尾架 | HHW30/25 | 0903035 | 25 | 70×100 |
型 號 | 編 號 | 單根電纜允許最大厚度或直徑mm | 是士安輩容間高度X塞度mm | |
牽引滑車 | IHQ10/140 | 0901010 | 14 | 45×100 |
中間滑車 | IHM10/140 | 0902010 | 14 | 45×100 |
尾架 | IHW10/140 | 0903010 | 14 | 45×100 |




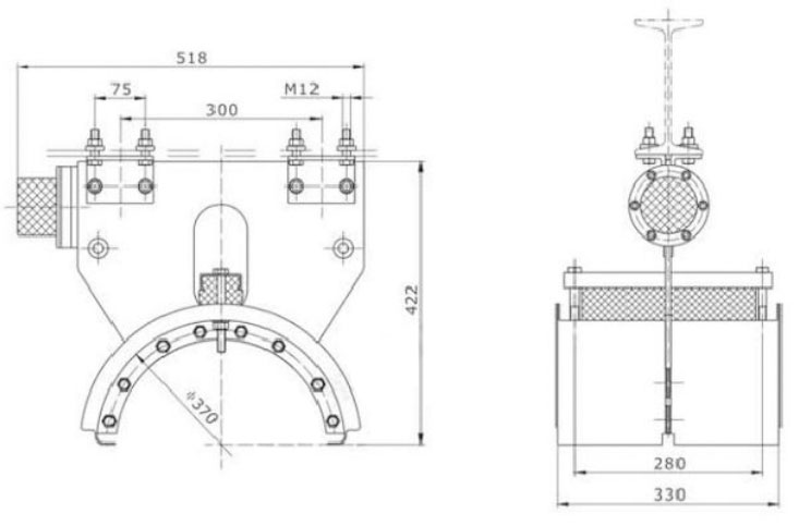
類別 | 適用在I型鋼INP120~160和H型鋼IPE102~150軌道上 |
載重量 | 550kg |
材質 | 鋼熱鍍鋅處理 |
環境溫度 | -40℃~+125℃ |
運行速度 | ≤300 m/min |
INP | 180 | 200 | 220 | 250 |
尺寸A mm | 200 | 206 | 216 | 225 |
民士B mm | 116 | 122 | 132 | 140 |
IPF | 200/150 | 250/200 | 250/250 |
尺寸A1mm | 256 | 310 | 360 |
尺寸B1mm | 172 | 225 | 275 |
型 號 | 編 號 | 單根電纜允許最大厚度或直徑mm | 最大安裝空間高度×寬度mm | ||
單層 | 牽引滑車 | IHQ40/370 | 0901040 | 37 | 85×260 |
| 中間滑車 | IHM40/370 | 0902040 | 37 | 85×260 |
| 尾架 | IHW40/370 | 0903040 | 37 | 85×260 |
雙層 | 牽引滑車 | IHQ40/370S | 0901045 | 37 | 85×260 |
| 中間滑車 | IHM40/370S | 0902045 | 37 | 85×260 |
| 尾架 | IHW40/370S | 0903045 | 37 | 85×260 |
型 號 | 編 號 | 單根電纜允許最大厚度或直徑mm | 最大安裝空間高度×寬度mm | ||
單層 | 牽引滑車 | HHQ40/370 | 0901060 | 37 | 85×260 |
| 中間滑車 | HHM40/370 | 0902060 | 37 | 85×260 |
| 尾架 | HHW40/370 | 0903060 | 37 | 85×260 |
雙層 | 牽引滑車 | HHQ40/370S | 0901065 | 37 | 85×260 |
| 中間滑車 | HHM40/370S | 0902065 | 37 | 85×260 |
| 尾架 | HHW40/370S | 0903065 | 37 | 85×260 |




1、 當拖車首次安裝完成使用一段時間后,需要重新擰緊一次緊固件。
2、 電纜拖令系統使用半年或一年后,主要進行以下維護:
(1)確定電纜在拖車上的分布是否均勻 . 當拖車傾斜向軌道的一邊時,這表示拖車在軌道兩側不平衡,如果不調整它將繼續傾斜,直到電纜拖車損壞為止。
(2)檢查電纜是否緊壓在馬鞍梁上,尤其注意圓電纜的排放順序,并且觀察電纜是否被壓緊。
(3)擰緊所有拖車的緊固件。
(4)檢查拖車的滾輪磨損情況,必須更換磨損嚴重的滾輪,并且建議整套更換。
(5)如果每臺拖車磨損的位置不同,在更換拖車前,我們必須找出原因和解決的方法。
1. 積放空間的長度應該注意的電纜拖車型號,規格,數量。
2. 當你有特殊的要求時,你可以和我們的技術部門聯系。



